Opis domu
Projekt domu z poddaszem i garażem SZTOKHOLM
Projekt domu z poddaszem i garażem SZTOKHOLM, idealny dla 5-6 osobowej rodziny, łączy nowoczesny design z funkcjonalnością, wyróżniając się unikalną kolorystyką i architekturą. Jego przemyślany układ i duże okna zapewniają obfitość naturalnego światła w całym wnętrzu, tworząc przytulną atmosferę.
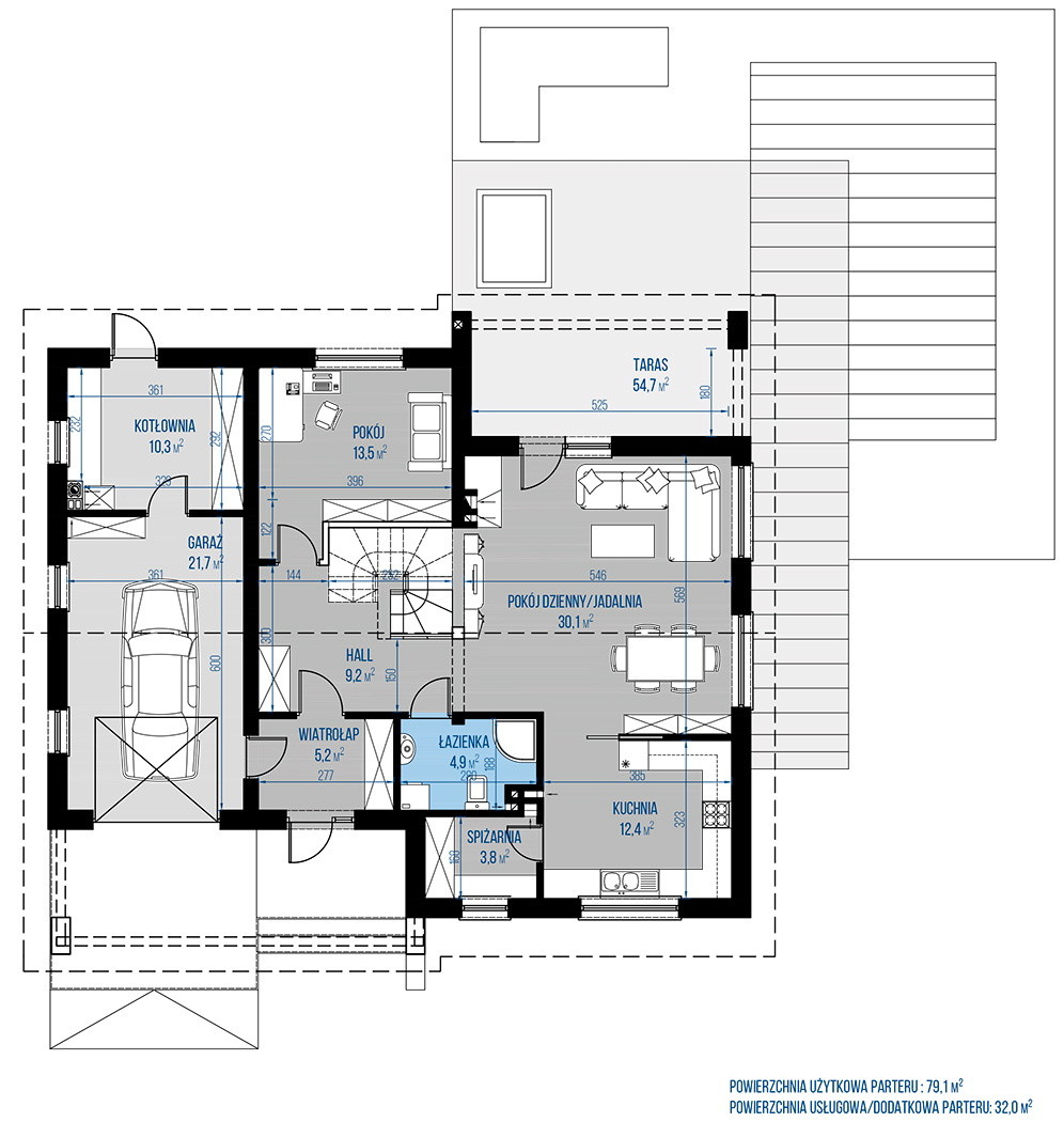
Parter domu to otwarta strefa dzienna, która obejmuje salon z jadalnią i opcją otwartej kuchni z drzwiami przesuwnymi. Przyległa spiżarnia oferuje dodatkową przestrzeń na przechowywanie. Dla osób pracujących z domu przewidziano komfortowy gabinet, a z holu dostępny jest również funkcjonalny garaż jednostanowiskowy z kotłownią i pomieszczeniem gospodarczym, z łatwym dostępem do ogrodu.
Piętro to prywatna strefa nocna z trzema sypialniami, dwoma garderobami i dwoma łazienkami, w tym jedną z przestrzenią na pralnię. Projekt domu z poddaszem i garażem SZTOKHOLM opiera się na tradycyjnej murowanej konstrukcji z elegancką okładziną z płytek klinkierowych, a dach pokryty jest dachówką ceramiczną lub cementową. Istnieje możliwość dostosowania technologii budowy, w tym wykonania prefabrykowanej więźby drewnianej.
Dom SZTOKHOLM to doskonały wybór dla rodzin ceniących przestrzeń, nowoczesność i wygodę, zaprojektowany z myślą o zaspokojeniu potrzeb współczesnego życia. Zapraszamy do odkrycia tego wyjątkowego projektu, który łączy w sobie styl, komfort i funkcjonalność.
















Recenzje
Na razie brak recenzji produktów.